南向き土地63坪の注文住宅用地分譲開始
南向き土地63坪の
注文住宅用地分譲開始
【自由設計で建てられる 建築条件付き土地分譲中】 |

自由設計で建てられる |
魅力いっぱいの |
point.1
南向きの土地
敷地面積63坪!
大変貴重な南向きの整形土地で
敷地面積63坪。
道路間口訳13mもあるため、駐車場も3台以上ラクラク確保!
point.2
ドラッグストア
スーパー・コンビニ等
近隣に多数
スーパーは車で5分圏内に3件
コンビニも徒歩圏。
ドラッグストアも多数あり
買い物利便性もGOOD♪
アピタやユニクロ等も近いです。
point.3
グルッポふじとう
至近で子育てにも
最適な環境
グルッポふじとう(春日井市高蔵寺まなびと交流センター)が近くにあるため、
小さいお子様の成長にも大変良環境です。
★ 魅力いっぱいの閑静な住宅地 ★ |
point.1 南向きの土地、敷地面積63坪!
大変貴重な南向きの整形土地で敷地面積63坪。
道路間口訳13mもあるため、駐車場も3台以上ラクラク確保!
point.2 ドラッグストアスーパー・コンビニ等近隣に多数
スーパーは車で5分圏内に3件コンビニも徒歩圏。
ドラッグストアも多数あり買い物利便性もGOOD♪
アピタやユニクロ等も近いです。
point.3 グルッポふじとう至近で子育てにも最適な環境
グルッポふじとう(春日井市高蔵寺まなびと交流センター)が近くにあるため、
小さいお子様の成長にも大変良環境です。


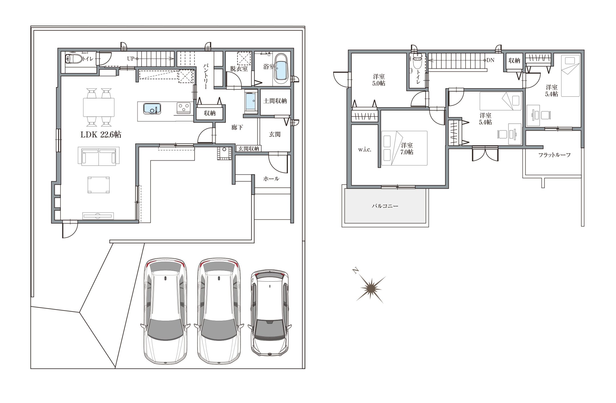
| 区画 | 敷地面積 | 建物延床面積 | 間取 | 販売価格 | 成約状況 |
|---|---|---|---|---|---|
| 1 | 208.60㎡(63.10坪) | 未定 | 自由設計受付中 | 1998万円(建築条件付) |
| 所在地 | 春日井市藤山台8丁目17番地25 |
|---|---|
| 交通 | 名鉄バス「庄名」停 徒歩6分 / JR中央本線「高蔵寺」駅 自転車10分(2.7km) |
| 総区画数 | 1区画 |
| 販売価格 | 未定 |
| 地目 | 宅地 |
| 都市計画・用途地域 | 市街化区域・第一種低層住居専用地域 |
| 建ぺい率 | 50% |
| 容積率 | 100% |
| 道路幅員 | 南西側公道12.0mに接す |
| 設備 | 電気:中部電力/ガス:東邦ガス(都市ガス)/水道:公営水道/下水:公共下水 |
| 学校 | 藤山台小学校/藤山台中学校 |
| 土地の権利形態 | 所有権 |
| 取引態様 | 売買 |
| 売主 | イワクラゴールデンホーム株式会社 |
| その他概要・特記事項 | ※建築条件付宅地:この土地は、土地売買契約3ヶ月以内にイワクラゴールデンホーム株式会社との間で住宅の建築請負契約を締結して頂くことを条件として販売いたします。土地売買契約後、建築設計の協議をしていただきますが、3ヶ月以内にこの建築請負契約が成立しない場合には、この土地売買契約は解除となり、受領した金銭は全額無利息にてお返します。 |
自由設計
| 販売戸数 | 1区画 |
|---|---|
| 敷地面積 | 209.10㎡(63.25坪) |