大森・金城学院前駅を最寄りとする、教育環境と落ち着いた街並みが魅力のロケーション。
名古屋都心へ快適にアクセスできる利便性に加え、大学や公園が身近に揃う、子育て世帯にも嬉しい住環境に
全10区画のプロジェクト、現在NO.3〜NO.6号地分譲スタート!NO.7〜10号地までは自由設計受付中です!
実際に完成した住まいをご覧いただきながら、「このまま住みたい」「ここを参考に自分たちらしく建てたい」など、
ご予算や暮らし方に合わせてお選びいただけます。完成済みの分譲住宅は、間取りや広さ、住み心地をその場で確認できる安心感が魅力。
自由設計区画では、実際の街並みや建物の雰囲気を見ながら、理想の住まいを具体的にイメージできます。
“すぐに住める”も、“こだわってつくる”も、この街ならどちらも叶います。
分譲住宅と自由設計、2つの選択肢から、ご家族にぴったりの住まいを見つけてください。




| 区画 | 敷地面積 | 建物延床面積 | 間取 | 販売価格 | 成約状況 |
|---|---|---|---|---|---|
| 1 | 149.50㎡(約45.22坪) | プランニング中 | モデルハウス | - | |
| 2 | 141.91㎡(約42.92坪) | プランニング中 | モデルハウス | - | |
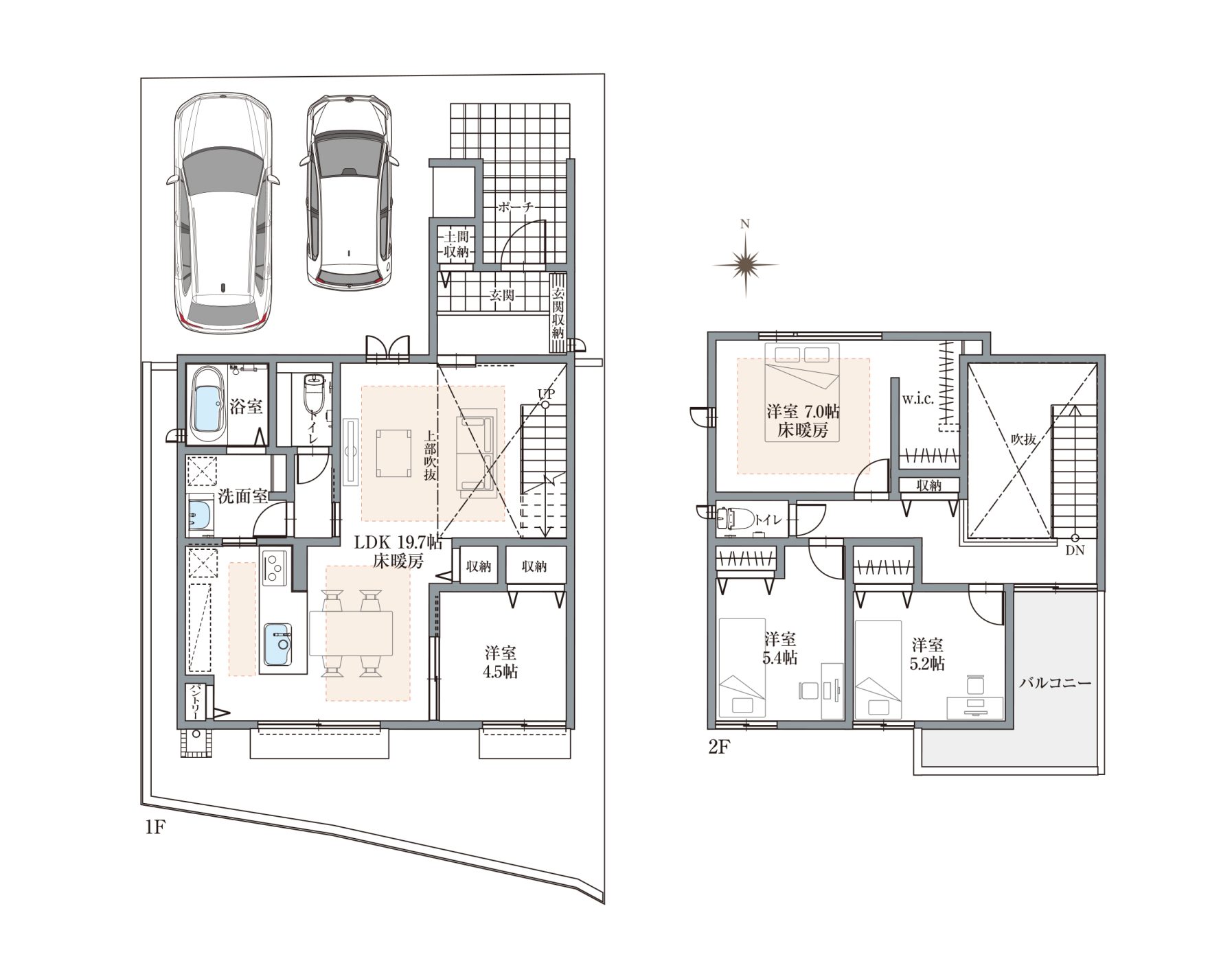
| 3 | 141.93㎡(42.93坪) | 108.49㎡(32.81坪) | 4LDK+土間+吹抜け+WIC | 調整中 | |
| 4 | 143.79㎡(43.49坪) | 109.39㎡(33.09坪) | 4LDK+土間+パントリー+WIC | 調整中 | |
| 5 | 140.86㎡(42.61坪) | 111.75㎡(33.80坪) | 4LDK+WIC+中庭 | 調整中 | |
| 6 | 140.16㎡(42.39坪) | 110.98㎡(33.57坪) | 4LDK+土間+パントリー+WIC | 調整中 | |
| 7 | 140.00㎡(約42.35坪) | - | 自由設計 | 1,698万円(建築条件付き) | |
| 8 | 140.00㎡(約42.35坪) | - | 自由設計 | 1,698万円(建築条件付き) | |
| 9 | 140.00㎡(約42.35坪) | - | 自由設計 | 1,698万円(建築条件付き) | |
| 10 | 140.00㎡(約42.35坪) | - | 自由設計 | 1,698万円(建築条件付き) |
大森・金城学院前駅 が徒歩圏内。栄町方面へ乗り換えなしでアクセスでき、通勤・通学も快適です。
駅周辺にはスーパーやドラッグストアが揃い、毎日のお買い物にも便利。
落ち着いた住宅街にありながら、名古屋都心へのアクセスの良さも兼ね備えた、暮らしやすい住環境です。
| 所在地 | 尾張旭市霞ヶ丘町南95番3他 |
|---|---|
| 交通 | 名鉄「大森・金城学院前」駅徒歩約8分 |
| 総区画数 | 10区画 |
| 販売価格 | 1,698万円(建築条件付き)※⑦⑧⑨⑩の4区画 |
| 間取り | 4LDK※③④⑤⑥ |
| 地目 | 宅地 |
| 都市計画・用途地域 | 第一種住居地域 |
| 建ぺい率 | 60% |
| 容積率 | 200% |
| 構造 | 木造枠組壁工法 |
| 道路幅員 | 北側16m |
| 設備 | 電気:中部電力(他の小売電気事業者の選択も可能です)/ ガス:東邦ガス(都市ガス)/水道:公営水道/下水:浄化槽 |
| 学校 | 白鳳小学校/西中学校 |
| 土地の権利形態 | 所有権 |
| 取引態様 | 売主 |
| 売主 | イワクラゴールデンホーム株式会社 |
| 完成予定 | 2026年8月※③④⑤⑥ |
| 建築確認番号 | 建築確認サービス第KS126-0420-53622他 |
| その他概要・特記事項 | ※本ページで使用している写真の一部は、弊社の施工例及びAI技術による画像生成(加工)を施した物を掲載しております。 |