| 区画 | 敷地面積 | 建物延床面積 | 間取 | 販売価格 | 成約状況 |
|---|---|---|---|---|---|
| 1 | - | - | - | - | |
| 2 | - | - | - | - | |
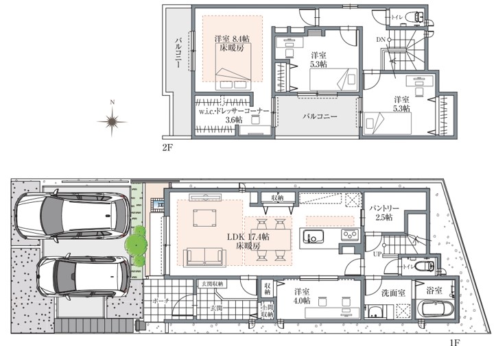
| 3 | 123.42㎡(37.33坪) | 108.76㎡(32.89坪) | 4LDK+土間収納+パントリー+WIC | 4,198万円 | |
| 4 | 126.27㎡(38.19坪) | 106.58㎡(32.24坪) | 4LDK+ストックスペース+WIC | 4,198万円→ 3,998万円(R8.2.27) |
|
| 5 | - | - | - | - | |
| 6 | 177.17㎡(53.59坪) ※共有地48.72㎡を含む。 |
110.72㎡(33.49坪) | 3LDK+FC+WIC | 4298万円 | |
| 7 | - | - | - | - |
| 所在地 | 愛知県名古屋市守山区下志段味5丁目 |
|---|---|
| 交通 | ゆとりーとバス「志段味支所北」徒歩6分 |
| 総区画数 | 7区画 |
| 販売価格 | 3,998万円~4,298万円 |
| 間取り | 3LDK~4LDK+S |
| 都市計画・用途地域 | 市街化区域 / 第二種中高層住居専用地域 / 準防火地域 |
| 建ぺい率 | 60% |
| 容積率 | 200% |
| 構造 | 木造枠組壁工法(ツーバイフォー工法) |
| 道路幅員 | 西側 6m |
| 設備 | 電気:中部電力(他の小売電気事業者の選択も可能です) / ガス都市ガス / 水道:公営水道 / 下水:公共下水道 |
| 学校 | 下志段味小学校 / 志段味中学校 |
| 土地の権利形態 | 所有権 |
| 取引態様 | 売主 |
| 売主 | イワクラゴールデンホーム株式会社 |
| 建物完成 | 2025年11月 |
| 建築確認番号 | 確認サービス第KS125-0410-51951号他 |
| その他概要・特記事項 | ※本ページで使用している写真の一部は弊社の施工例を掲載しております。<br /> ※計画仕様が変更となる場合がございます。詳しくは係員にお伺いください。 |