商業施設が充実した便利な環境で、子育て世代にも安心の快適な暮らしを実現します。
名鉄犬山線「西春」駅へは自転車でわずか7分。周辺にはスーパーや飲食店が立ち並び、日々の暮らしを
心地よく支えてくれます。西春駅南エリアには、児童館・学校・公園といった
子育て施設も充実しており、家族みんなが安心して過ごせる環境が整っています。
通勤の利便性や買い物のしやすさに加えて、今後の発展にも期待できるこの地域は、
住まいとしてだけでなく、資産としても大きな価値を持つロケーションです。
No.1号地では、リビングに隣接したワークスペースとコミュニティライブラリーが魅力。読書や勉強、テレワークにも最適。
リビングとゆるやかにつながる多目的空間が、日常にゆとりを生み出します。

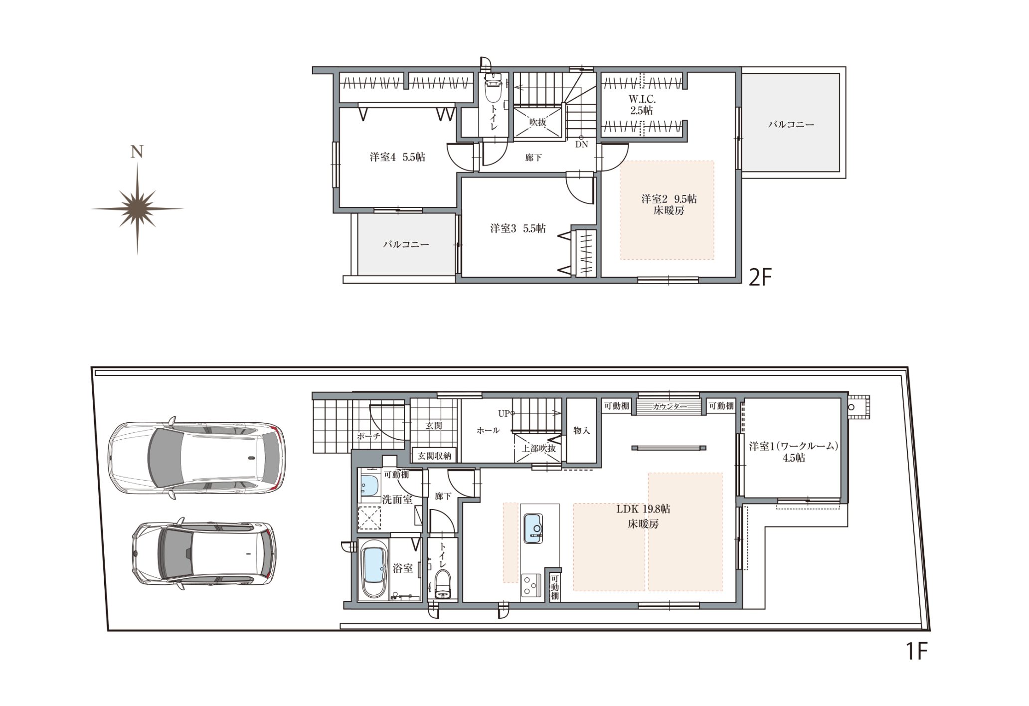
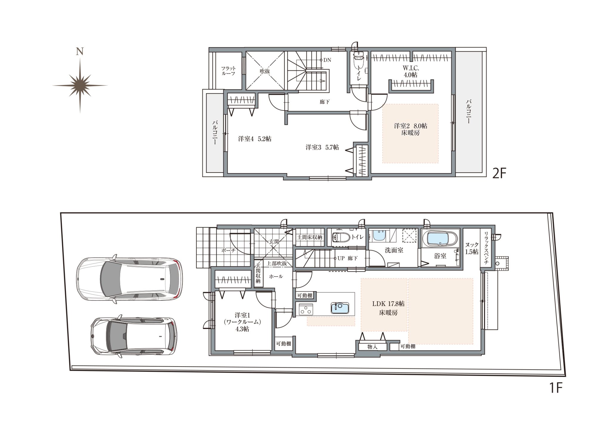
| 区画 | 敷地面積 | 建物延床面積 | 間取 | 販売価格 | 成約状況 |
|---|---|---|---|---|---|
| 1 | 146.58㎡(44.34坪) | 110.18㎡(33.32坪) | 4LDK+パントリー+WIC | 4,498万円 | |
| 2 | - | - | - | - |
名鉄犬山線「西春駅」から自転車で7分。ロードサイドにはスーパーや飲食店が揃い、快適な暮らしができる、そんな環境が西春駅南には広がっています。児童館や学校・公園など施設も身近にあり家族にとって安心の住環境です。
| 所在地 | 北名古屋市野崎宮前10番1 |
|---|---|
| 交通 | 名古屋鉄道 犬山線「西春」駅 徒歩18分 |
| 総区画数 | 2区画 |
| 販売価格 | 4,498万円 |
| 間取り | 3LDK・4LDK |
| 地目 | 宅地 |
| 都市計画・用途地域 | 市街化区域・第一種中高層住居専用地域 |
| 建ぺい率 | 60% |
| 容積率 | 200% |
| 構造 | 木造枠組壁工法(ツーバイフォー工法) |
| 道路幅員 | 公道幅員 / 西側 幅員:約3.8m 接道間口 / 西側 幅員:約13.7m |
| 設備 | 電気:中部電力(他の小売電気事業者の選択も可能です)/ ガス:東邦ガス(都市ガス)/水道:公営水道/下水:公共下水 |
| 学校 | 白木小学校/白木中学校 |
| 土地の権利形態 | 所有権 |
| 取引態様 | 売主 |
| 売主 | イワクラゴールデンホーム株式会社 |
| 完成予定 | 2026年5月頃 |
| 建築確認番号 | 第R07確認建築愛建住セ11157号他 |
| その他概要・特記事項 | ※本ページで使用している写真の一部は、弊社の施工例及びAI技術による画像生成(加工)を施した物を掲載しております。 |