志水小学校まで徒歩4分。子育て世帯にも安心の落ち着いた住環境が広がる西春日井郡豊山町。
住まいは収納も豊富な、ゆとりある4LDK。ご希望に応じてIoT対応住宅としての設備導入も可能です。
スマートフォンから外出先でも玄関の施錠確認や、照明・エアコン・お風呂などを操作できるほか、
室内カメラを設置すれば、ペットの様子を見守ることもできます。
南面にはリビングに面したガーデンスペースを設け、明るい陽光が差し込む心地よい空間に。
家族もペットも快適に過ごせる住まいです。



| 区画 | 敷地面積 | 建物延床面積 | 間取 | 販売価格 | 成約状況 |
|---|---|---|---|---|---|
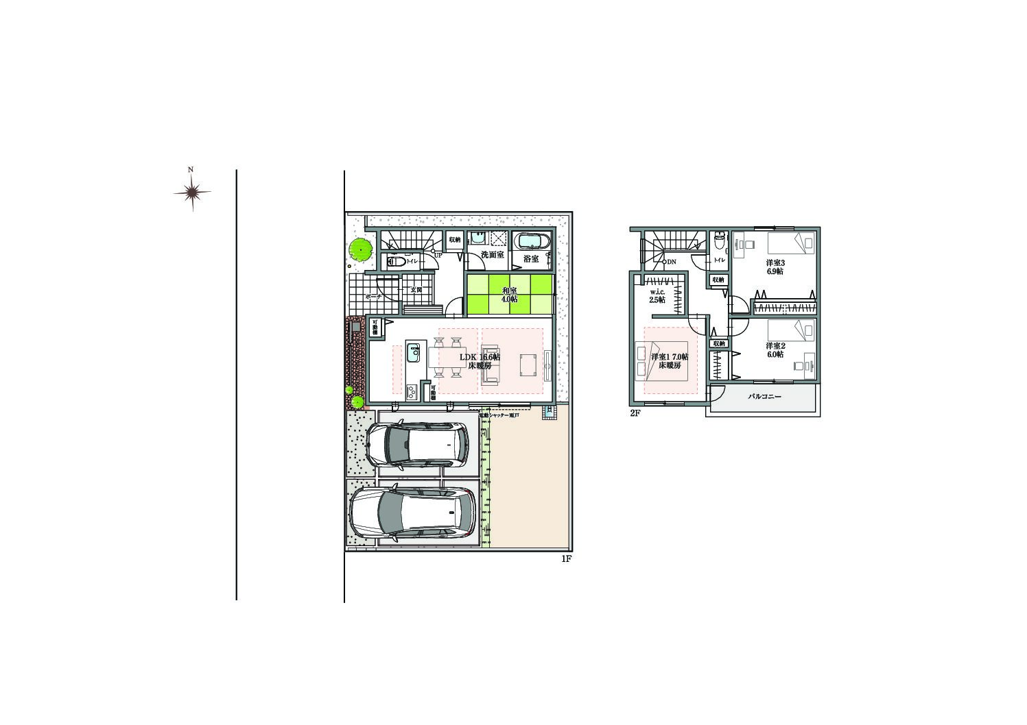
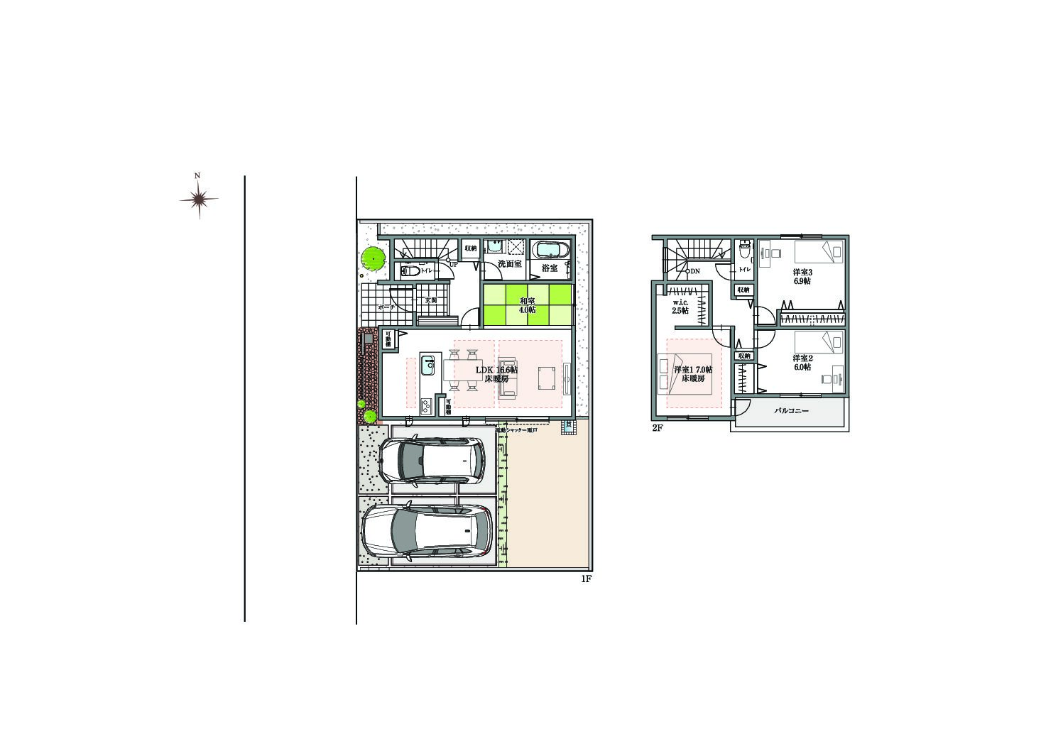
| 1 | 127.69㎡(38.62坪) | 104.35㎡(31.35坪) | 4LDK+W.I.C | 3,748万円→ 3,698万円(R8.5.6) |
|
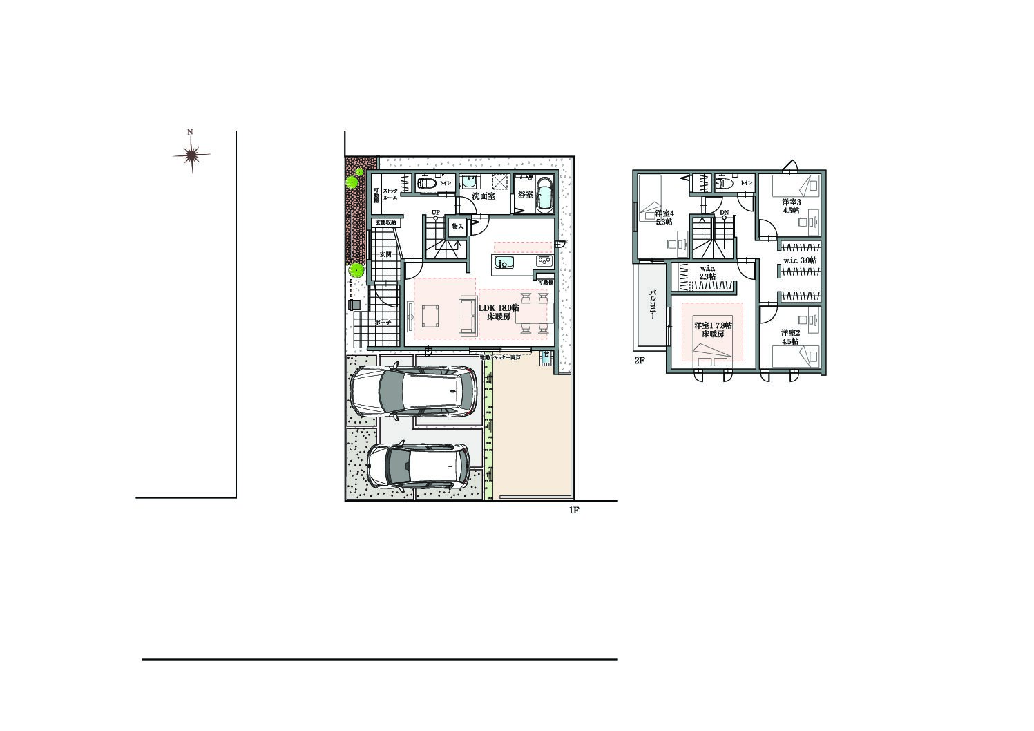
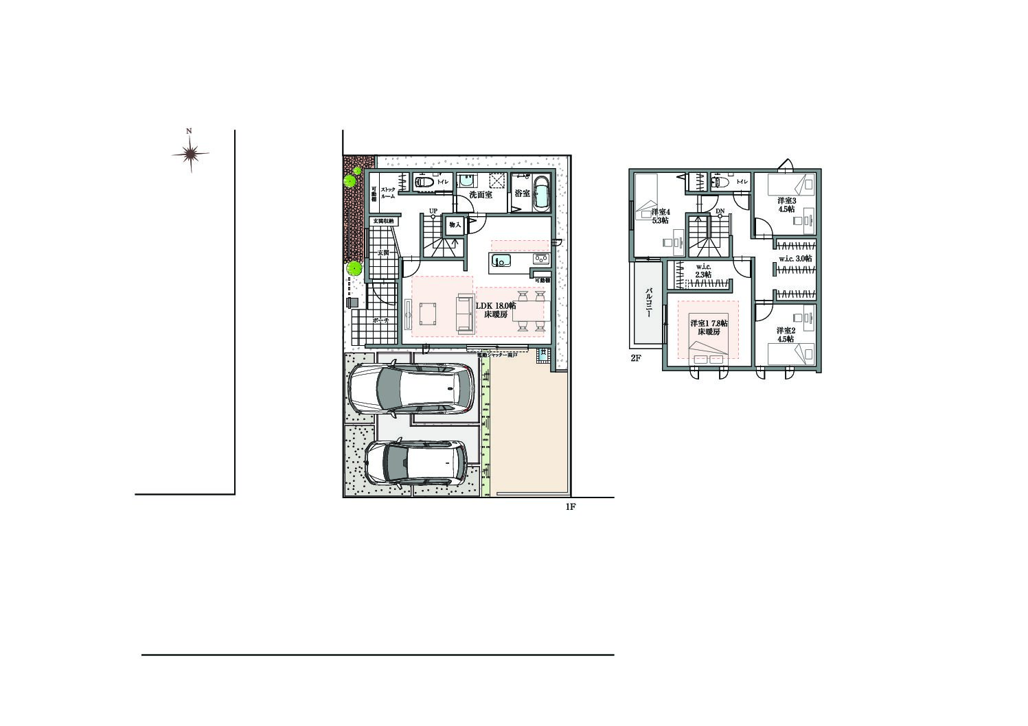
| 2 | 127.69㎡(38.62坪) | 109.73㎡(33.19坪) | 4LDK+W.I.C | 3,998万円→ 3,848万円(R8.5.6) |
豊山町の主要交通はバスです。
豊山町内は、一律100円で利用できます。
小牧市民病院へも行けるので、将来的にも安心!
| 所在地 | 西春日井郡豊山町大字豊場字冨士16他 |
|---|---|
| 交通 | とよやまタウンバス「青塚古墳前」停 徒歩1分 |
| 総区画数 | 2区画 |
| 販売価格 | 3,698万円・3,848万円 |
| 私道負担・道路 | 私道負担なし |
| 間取り | 4LDK |
| 地目 | 宅地 |
| 都市計画・用途地域 | 第一種中高層住居専用地域 |
| 建ぺい率 | 60% |
| 容積率 | 200% |
| 構造 | 木造枠組壁工法(ツーバイフォー工法) |
| 道路幅員 | 公道/西側約4.4m、南側約6.0m |
| 設備 | 電気:中部電力(他の小売電気事業者の選択も可能です) / ガス:東邦ガス(都市ガス) / 水道:公営水道 / 下水:公共下水道 |
| 学校 | 志水小学校 / 豊山中学校 |
| 土地の権利形態 | 所有権 |
| 取引態様 | 売主 |
| 売主 | イワクラゴールデンホーム株式会社 |
| 建物完成 | 2026年2月 |
| 建築確認番号 | 確認サービス第KS125-0420-55155号他 |
| その他概要・特記事項 | ※本ページで使用している写真の一部は、弊社の施工例及びAI技術による画像生成(加工)を施した物を掲載しております。 |
分譲
| 販売戸数 | 2区画 |
|---|---|
| 敷地面積 | 127.69㎡(38.62坪) |
| 建物面積 | 104.35㎡(31.56坪)・109.73㎡(33.19坪) |
| 完成予定時期 | 2025年11月下旬 |
| 建築確認番号 | 確認サービス第KS125-0420-55155号他 |